1.市场上以建筑彩色效果图和照片的图书偏多,以技术图纸为主,对学生有实际指导意义的书偏少,该书给学生以正确扎实的设计观,并且是实用的学习范例。
2.继承第一册的经典模式,新增加六位建筑大师的经典作品,配有完整的带比例的平面图,剖面图等图纸,可参考性极强。
3.从内容和系列丛书的性质而言,本套书具有经典畅销书的潜质。
				
			编辑推荐
图书简介
					建筑形式侧重于建筑体量与表皮的表达,平面与剖面则更强调对建筑空间的塑造、对光影的把握,同时反映了建筑与场所的关系、建筑与大地的关系,以及建筑与环境深层次的关联。
本书诚邀24位中国极具影响力的建筑师提供各自近十年内的优秀作品,通过不同建筑师对平面与剖面的雕琢塑造具有震撼力的空间光影关系,反映建筑最本质的内涵,以期促进建筑教学的正向发展,培养正确的设计观。
				
			本书诚邀24位中国极具影响力的建筑师提供各自近十年内的优秀作品,通过不同建筑师对平面与剖面的雕琢塑造具有震撼力的空间光影关系,反映建筑最本质的内涵,以期促进建筑教学的正向发展,培养正确的设计观。
图书目录
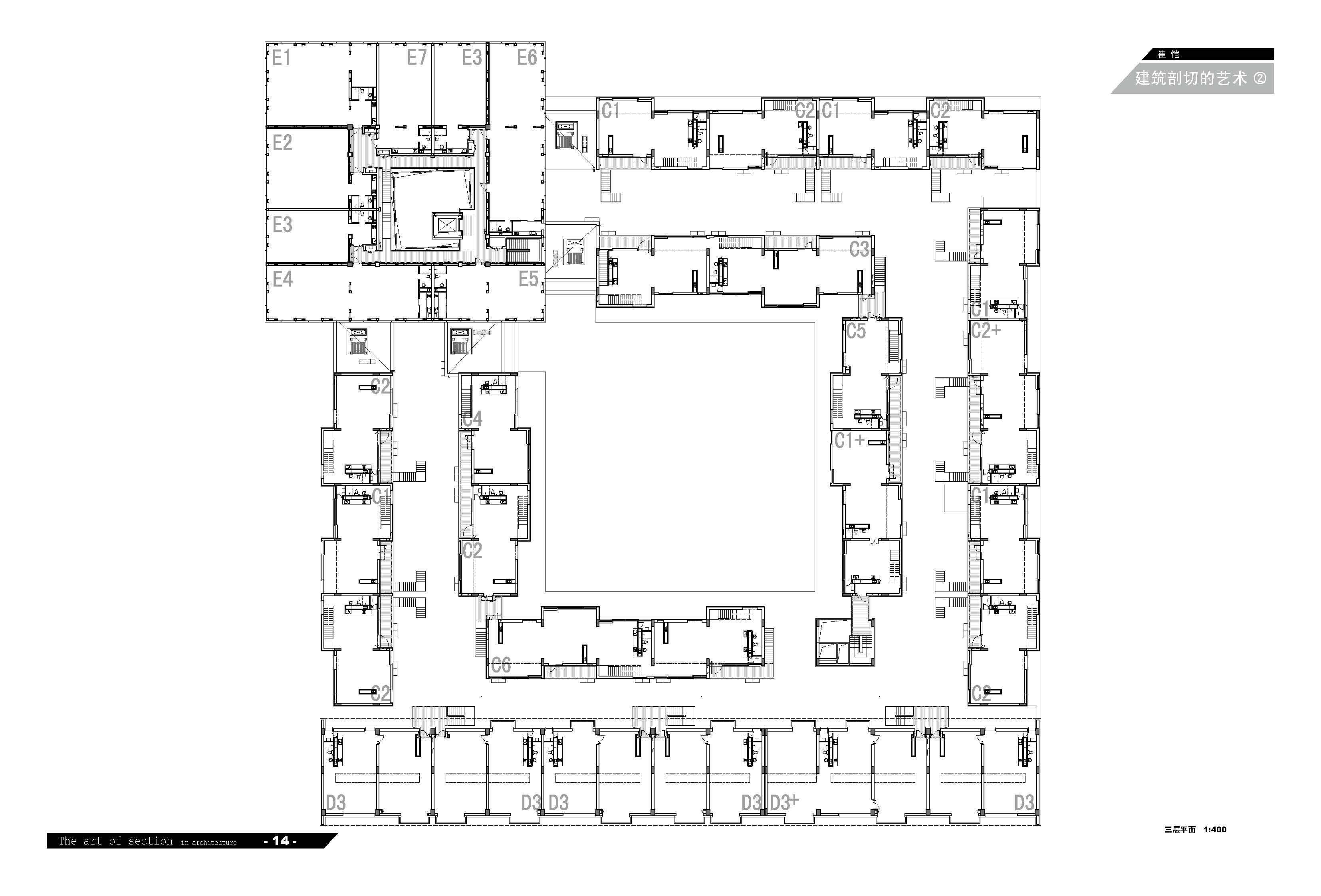
						西山 艺术工坊
玉树州 地震遗址纪念馆
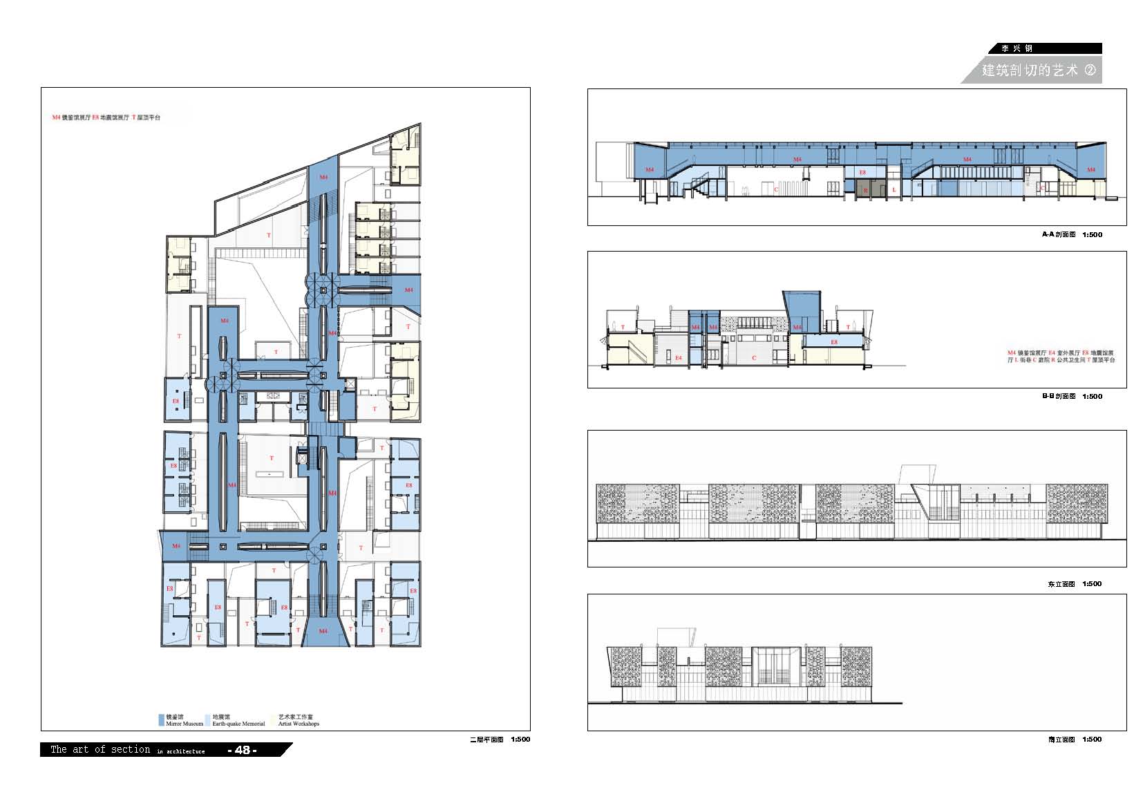
建川镜鉴博物馆暨 汶川地震纪念馆
北京林业大学 学研中心
西溪 会馆
四川安仁建川博物馆(聚落) 文革之钟博物馆
林芝尼洋河谷 游客接待站
北京 龙山教堂
河北教育 出版社
郑州郑东新区 城市规划展览馆
嘉定新城区 燃气管理站
南通 范曾艺术馆
远香湖公园 探香阁餐厅
伊比利亚 当代艺术中心
贾平凹 文学艺术馆
国轩国际研发中心 商业中心
镇江丹徒区 城市规划建设展览馆
张家界 博物馆
当代MOMA 联接复合体
大同 大剧院
南京 建筑实践展01 号工作室
天津纪庄 天主教堂
钟祥市 文化体育中心
桥上 书屋
					
				玉树州 地震遗址纪念馆
建川镜鉴博物馆暨 汶川地震纪念馆
北京林业大学 学研中心
西溪 会馆
四川安仁建川博物馆(聚落) 文革之钟博物馆
林芝尼洋河谷 游客接待站
北京 龙山教堂
河北教育 出版社
郑州郑东新区 城市规划展览馆
嘉定新城区 燃气管理站
南通 范曾艺术馆
远香湖公园 探香阁餐厅
伊比利亚 当代艺术中心
贾平凹 文学艺术馆
国轩国际研发中心 商业中心
镇江丹徒区 城市规划建设展览馆
张家界 博物馆
当代MOMA 联接复合体
大同 大剧院
南京 建筑实践展01 号工作室
天津纪庄 天主教堂
钟祥市 文化体育中心
桥上 书屋

								
								
								
								
								
								
								
								
								
								
								
								
								