1.项目创新性高
2.图片丰富,参考价值高
3.不一样的建筑,非凡的办公体验
4.引领办公设计的潮流,展现办公设计的进展
该书汇集了办公室设计中最具创新性的项目。这些项目能够提供更加舒适、灵活和健康的环境,处于这样的环境里,可以促进合作,激发创造力,提高生产力。该书中既有新建项目,也有改建项目,随着新材料的应用及新色剂理念的发展,对气候控制系统和生态责任的新认识,书中项目充分展示了办公设计这一领域中的重要进展。建筑师提供的大量彩色图片,详细的插图、草图和平面图,以及分析透彻的文字说明,使得该书极具参考价值看。
				
			编辑推荐
图书简介
					本书为读者精选建筑设计领域中许多最新、最为突出的项目实例。书中所呈现的项目涵盖了多种不同类型、功能和目标的建筑,并且均出自世界级著名建筑师之手。每个项目都带有全彩插图和文字解读,同时附带来自建筑师本人的平面图和建筑细节图,从而帮助读者更好地解读每个项目背后蕴藏的设计概念,是建筑师、设计师、结构师对办公建筑研究不可或缺的一本图书。
				
			图书目录
						REX
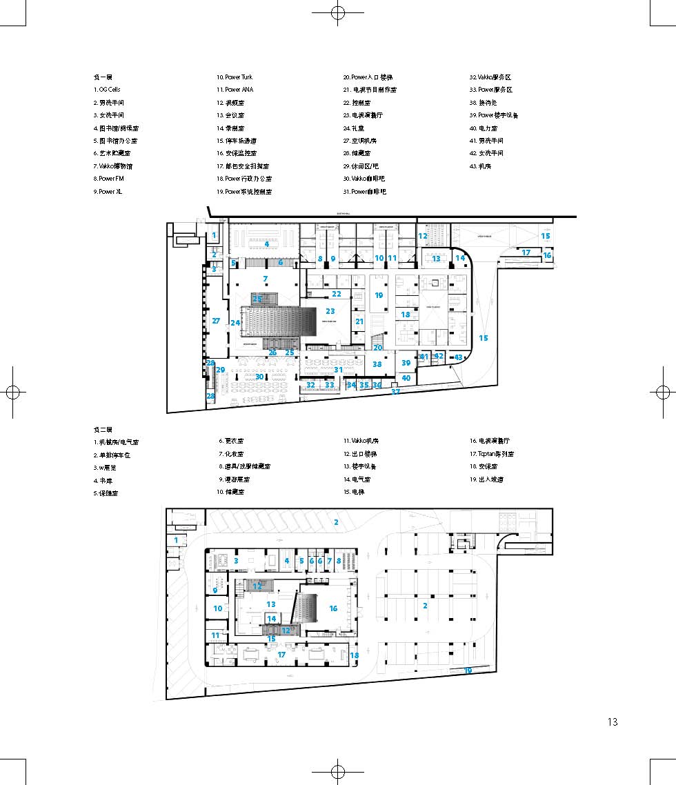
Vakko时装中心暨Power Media 中心
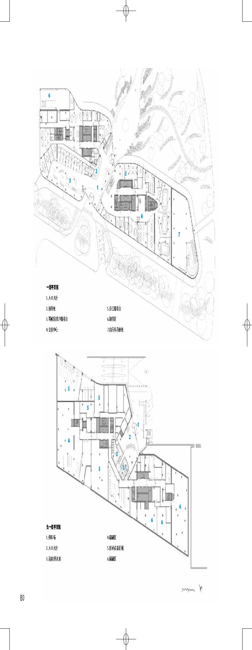
Batlle i Roig
电信市场委员会总部大楼
Dietmar Feichtinger Architectes
奥地利联合钢铁集团办公中心
Paul de Ruiter
TNT中心
3XN
盛宝银行
UNStudio
国税办公室和助学贷款服务中心大楼
Urban Platform
Fancy Retail总部
Herault Arnod Architects
Rossignol全球总部
Josep Miàs
iGuzzini Illuminazione Ib rica总部
Group A
英国石油公司炼油厂办公大楼
JSWD Architekten - Chaix & Morel et Associés
蒂森克虏伯总部大楼
3XN
米泽尔法特储蓄银行
Scandurra Studio
苏黎士保险公司意大利总部
Cino Zucchi Architetti & Park Associati
沙乐华总部大楼
EMBA_Estudi Massip-Bosch Arquitectes
西班牙Diagonal ZeroZero塔楼
Iotti+Pavarani Architetti
多莫斯铁三角
Amsa Architects
Synergasias合作银行
VMX Architects
北海水务管理局大楼
GROUP A
沙特基础工业公司欧洲总部大楼
3XN
Horten律师事务所总部办公楼
Paul de Ruiter
TransPort大楼
Henning Larsen Architects
德国明镜周刊总部大楼
Park Associati & Zucchi & Partners
米兰堤赞诺32号办公楼
Schmidt Hammer Lassen Architects
水晶大厦
					
				Vakko时装中心暨Power Media 中心
Batlle i Roig
电信市场委员会总部大楼
Dietmar Feichtinger Architectes
奥地利联合钢铁集团办公中心
Paul de Ruiter
TNT中心
3XN
盛宝银行
UNStudio
国税办公室和助学贷款服务中心大楼
Urban Platform
Fancy Retail总部
Herault Arnod Architects
Rossignol全球总部
Josep Miàs
iGuzzini Illuminazione Ib rica总部
Group A
英国石油公司炼油厂办公大楼
JSWD Architekten - Chaix & Morel et Associés
蒂森克虏伯总部大楼
3XN
米泽尔法特储蓄银行
Scandurra Studio
苏黎士保险公司意大利总部
Cino Zucchi Architetti & Park Associati
沙乐华总部大楼
EMBA_Estudi Massip-Bosch Arquitectes
西班牙Diagonal ZeroZero塔楼
Iotti+Pavarani Architetti
多莫斯铁三角
Amsa Architects
Synergasias合作银行
VMX Architects
北海水务管理局大楼
GROUP A
沙特基础工业公司欧洲总部大楼
3XN
Horten律师事务所总部办公楼
Paul de Ruiter
TransPort大楼
Henning Larsen Architects
德国明镜周刊总部大楼
Park Associati & Zucchi & Partners
米兰堤赞诺32号办公楼
Schmidt Hammer Lassen Architects
水晶大厦

								
								
								
								
								
								
								
								
								
								
								
								
								
								
								
								
								
								
								
								
								
								
								
								
								
								
								