★精心遴选118套受广大业主欢迎的经典小别墅设计案例
★案例风格多样,分为现代风格、新中式风格、欧式风格(简欧、地中海风格)、中式合院、混合中式风格和民宿几种接受度高的建筑风格
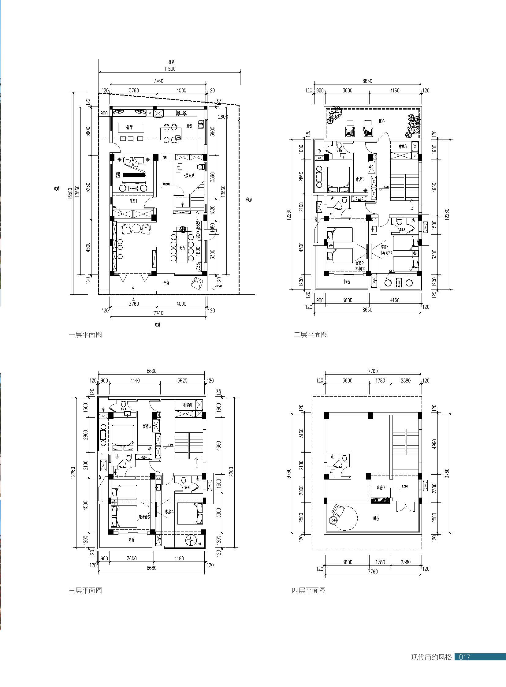
★通过室内外效果图、平面图、立面图、剖面图及大样节点详图等多方位的展示,为设计师和准备建造小别墅的业主提供设计和施工参考
★书中案例附有二维码,读者扫码后不仅可以观看设计方案360°动态效果图展示,还可以下载更详细的CAD图纸,直观易懂、方便快捷
编辑推荐
图书简介
《别墅设计实用图集》精心遴选118套广受业主欢迎的经典小别墅设计案例,分为现代、新中式、合院、欧式(简欧、地中海风格)、中式合院、混合中式和民宿几种接受度高的建筑风格,通过效果图、平面图、立面图、剖面图及大样节点详图等多方位的展示,为设计师和准备建造小别墅的业主提供设计和施工参考。同时,书中对绝大部分案例还附有二维码,读者扫码后不仅可以观看设计方案360°动态效果图展示,还可以下载更详细的施工图纸,直观易懂、方便快捷。
图书目录
现代简约风格
海南文昌现代两层别墅 010
2 层 建筑面积:223.73 m2
湖南长沙郭家现代别墅 012
4 层 建筑面积:571.00 m2
上海闵行徐家现代别墅 015
2 层 建筑面积:187.44 m2
浙江温州徐家现代别墅 016
4 层 建筑面积:351.00 m2
北京顺义方家现代别墅 019
2 层 建筑面积:226.00 m2
河北保定翟家现代别墅 020
2 层 建筑面积:426.00 m2
湖南永州周家现代别墅 022
3 层 建筑面积:683.00 m2
贵州六盘水杜家现代别墅 024
2 层 建筑面积:301.00 m2
重庆铜梁董家现代别墅 026
2 层 建筑面积:311.00 m2
北京房山许家现代别墅 028
2 层 建筑面积:280.00 m2
广东湛江梁家现代别墅 030
4 层 建筑面积:526.00 m2
北京昌平王家现代别墅 032
3 层 建筑面积:541.00 m2
湖南怀化侯家现代别墅 034
3 层 建筑面积:503.00 m2
浙江衢州张家现代别墅 036
3 层 建筑面积:300.00 m2
湖南长沙谢家现代别墅 038
4 层 建筑面积:570.00 m2
湖南益阳党家现代别墅 040
2 层 建筑面积:320.00 m2
安徽六安董家现代别墅 042
2 层 建筑面积:278.00 m2
河南巩义魏家现代别墅 044
3 层 建筑面积:287.00 m2
广西柳州范家三层现代别墅 046
3 层 建筑面积:438.00 m2
北京顺义李家现代别墅 048
2 层 建筑面积:383.00 m2
河南平顶山宋家现代别墅 050
2 层 建筑面积:273.00 m2
北京密云张家现代别墅 051
2 层 建筑面积:312.00 m2
北京顺义王家现代别墅 052
2 层 建筑面积:501.00 m2
欧式简约风格
广东揭阳黄家欧式别墅 054
2 层 建筑面积:246.00 m2
北京顺义王家欧式别墅 056
2 层 建筑面积:276.87 m2
湖北襄阳施家欧式别墅 058
2 层 建筑面积:283.00 m2
湖南衡阳欧家欧式别墅 060
2 层 建筑面积:418.00 m2
河南周口朱家欧式别墅 062
3 层 建筑面积:383.00 m2
湖北黄石袁家欧式别墅 064
3 层 建筑面积:317.00 m2
河北沧州张家欧式别墅 066
2 层 建筑面积:324.00 m2
湖南衡阳周家欧式别墅 068
3 层 建筑面积:538.00 m2
江苏常州周家欧式乡墅 070
2 层 建筑面积:383.00 m2
北京顺义张家欧式别墅 071
2 层 建筑面积:286.85 m2
湖北襄阳陈家欧式别墅 072
3 层 建筑面积:356.00 m2
四川成都陶家欧式别墅 074
3 层 建筑面积:416.00 m2
内蒙古赤峰刘家欧式别墅 076
2 层 建筑面积:299.00 m2
河北邯郸李家欧式别墅 078
2 层 建筑面积:285.00 m2
广东茂名李家欧式别墅 079
3 层 建筑面积:452.00 m2
湖南娄底邓家欧式别墅 080
3 层 建筑面积:475.00 m2
湖南长沙王家简欧别墅 082
2 层 建筑面积:283.00 m2
北京通州何家欧式别墅 084
2 层 建筑面积:225.00 m2
浙江杭州胡家欧式别墅 086
3 层 建筑面积:399.00 m2
广东广州从化钟家欧式别墅 088
4 层 建筑面积:286.00 m2
湖南岳阳杨家欧式别墅 090
4 层 建筑面积:996.00 m
新中式风格
北京延庆马家新中式别墅 094
2 层 建筑面积:316.18 m2
山东菏泽刘家新中式别墅 096
3 层 建筑面积:264.71 m2
江西景德镇张家新中式别墅 098
3 层 建筑面积:279.00 m2
广东佛山苏家新中式别墅 100
2 层 建筑面积:359.00 m2
安徽黄山方家新中式别墅 102
3 层 建筑面积:392.00 m2
广东梅州吴家新中式别墅 104
3 层 建筑面积:485.38 m2
湖北咸宁徐家新中式别墅 106
3 层 建筑面积:535.00 m2
江西吉安曾家新中式别墅 108
3 层 建筑面积:368.00 m2
湖南邵阳杨家新中式别墅 110
3 层 建筑面积:264.00 m2
江西吉安徽派雅居 112
2 层 建筑面积:584.00 m2
河北承德马家新中式别墅 114
2 层 建筑面积:357.00 m2
北京房山新中式别墅 116
2 层 建筑面积:638.00 m2
河北廊坊张家新中式别墅 118
2 层 建筑面积:659.00 m2
浙江台州吴家新中式别墅 120
3 层 建筑面积:320.00 m2
湖南长沙乡宁彭家别墅 122
2 层 建筑面积:287.00 m2
湖南邵阳易家别墅 124
2 层 建筑面积:480.00 m2
北京延庆李家露台别墅 127
2 层 建筑面积:390.00 m2
海南万宁王家新中式别墅 128
3 层 建筑面积:395.00 m2
湖南常德周家新中式别墅 130
3 层 建筑面积:469.00 m2
江西九江查家别墅 132
3 层 建筑面积:228.00 m2
河北秦皇岛王家新中式合院 134
1 层 建筑面积:255.00 m2
湖南长沙新中式别墅 136
4 层 建筑面积:560.00 m2
安徽合肥沈家新中式宅院 138
2 层 建筑面积:451.00 m2
广东惠州陈家新中式宅院别墅 141
2 层 建筑面积:270.00 m2
湖南娄底李家新中式别墅 142
3 层 建筑面积:326.00 m2
北京平谷徽派别墅 144
3 层 建筑面积:365.00 m2
河南洛阳甄家新中式别墅 146
3 层 建筑面积:530.00 m2
湖北襄阳王家新中式合院 148
1 层 建筑面积:192.00 m2
安徽安庆朱家新中式别墅 150
3 层 建筑面积:438.00 m2
湖南长沙刘家新中式别墅 152
3 层 建筑面积:579.00 m2
四川绵阳陈家新中式合院 154
1 层 建筑面积:150.00 m2
安徽池州钱家新中式别墅 156
3 层 建筑面积:457.00 m2
四川巴中黄家别墅 158
3 层 建筑面积:324.00 m2
海南万宁邓家新中式别墅 160
3 层 建筑面积:395.00 m2
中式合院风格
湖南岳阳周家中式三合院别墅 162
1 层 建筑面积:181.83 m2
河北保定张家中式别墅 164
2 层 建筑面积:508.00 m2
湖北黄冈吴家中式宅院 166
2 层 建筑面积:229.00 m2
安徽阜阳吕家中式三合院 168
2 层 建筑面积:366.00 m2
安徽淮北彭家四合院 170
1 层 建筑面积:549.00 m2
江苏南通刘家苏派三合院 172
2 层 建筑面积:396.00 m2
湖南长沙浏阳李家中式合院 173
1 层 建筑面积:279.00 m2
河北涿州齐家中式三合院 174
2 层 建筑面积:264.00 m2
山东淄博李家中式宅院 176
2 层 建筑面积:291.00 m2
江西赣州大余郑家中式合院 178
2 层 建筑面积:408.00 m2
云南迪庆舒家中式合院 180
2 层 建筑面积:460.00 m2
混合中式风格
北京房山郑家别墅 184
2 层 建筑面积:351.66 m2
河北保定李家别墅 186
2 层 建筑面积:218.18 m2
湖南邵阳刘家别墅 188
2 层 建筑面积:314.50 m2
浙江杭州程家别墅 190
3 层 建筑面积:428.00 m2
广东清远谭家别墅 192
3 层 建筑面积:495.52 m2
江西抚州李家别墅 194
3 层 建筑面积:591.00 m2
河南郑州魏家别墅 196
3 层 建筑面积:631.00 m2
湖北孝感喻家别墅 198
2 层 建筑面积:301.00 m2
陕西渭南王家别墅 200
2 层 建筑面积:338.00 m2
河南南阳荣家别墅 202
2 层 建筑面积:351.00 m2
北京密云王家别墅 204
2 层 建筑面积:242.00 m2
河南洛阳杜家别墅 206
4 层 建筑面积:658.00 m2
云南曲靖代家别墅 208
2 层 建筑面积:326.00 m2
安徽芜湖朱家混合中式别墅 210
2 层 建筑面积:336.00 m2
北京房山高家混合中式别墅 212
2 层 建筑面积:379.00 m2
北京平谷张家混合中式别墅 214
2 层 建筑面积:381.00 m2
广东湛江许家度假别墅 216
2 层 建筑面积:819.00 m2
河南安阳张家别墅 217
3 层 建筑面积:628.00 m2
福建漳州黄家混合中式别墅 218
4 层 建筑面积:1100.00 m2
民宿
浙江舟山水案山居民宿 222
4 层 建筑面积:401.01 m2
北京平谷玖佑民宿 224
2 层 建筑面积:552.00 m2
安徽安庆现代民宿 226
2 层 建筑面积:558.00 m2
江苏扬州易家民宿 228
3 层 建筑面积:665.00 m2
北京房山李家现代民宿 230
2 层 建筑面积:235.00 m2
福建泉州颜家现代民宿 232
3 层 建筑面积:524.00 m2
北京延庆马家现代民宿 234
2 层 建筑面积:252.00 m2
甘肃白银张家现代民宿 236
2 层 建筑面积:421.00 m2
北京密云韦家民宿 238
2 层 建筑面积:156.00 m2
北京通州刘家民宿 240
1 层 建筑面积:326.00 m2
海南文昌现代两层别墅 010
2 层 建筑面积:223.73 m2
湖南长沙郭家现代别墅 012
4 层 建筑面积:571.00 m2
上海闵行徐家现代别墅 015
2 层 建筑面积:187.44 m2
浙江温州徐家现代别墅 016
4 层 建筑面积:351.00 m2
北京顺义方家现代别墅 019
2 层 建筑面积:226.00 m2
河北保定翟家现代别墅 020
2 层 建筑面积:426.00 m2
湖南永州周家现代别墅 022
3 层 建筑面积:683.00 m2
贵州六盘水杜家现代别墅 024
2 层 建筑面积:301.00 m2
重庆铜梁董家现代别墅 026
2 层 建筑面积:311.00 m2
北京房山许家现代别墅 028
2 层 建筑面积:280.00 m2
广东湛江梁家现代别墅 030
4 层 建筑面积:526.00 m2
北京昌平王家现代别墅 032
3 层 建筑面积:541.00 m2
湖南怀化侯家现代别墅 034
3 层 建筑面积:503.00 m2
浙江衢州张家现代别墅 036
3 层 建筑面积:300.00 m2
湖南长沙谢家现代别墅 038
4 层 建筑面积:570.00 m2
湖南益阳党家现代别墅 040
2 层 建筑面积:320.00 m2
安徽六安董家现代别墅 042
2 层 建筑面积:278.00 m2
河南巩义魏家现代别墅 044
3 层 建筑面积:287.00 m2
广西柳州范家三层现代别墅 046
3 层 建筑面积:438.00 m2
北京顺义李家现代别墅 048
2 层 建筑面积:383.00 m2
河南平顶山宋家现代别墅 050
2 层 建筑面积:273.00 m2
北京密云张家现代别墅 051
2 层 建筑面积:312.00 m2
北京顺义王家现代别墅 052
2 层 建筑面积:501.00 m2
欧式简约风格
广东揭阳黄家欧式别墅 054
2 层 建筑面积:246.00 m2
北京顺义王家欧式别墅 056
2 层 建筑面积:276.87 m2
湖北襄阳施家欧式别墅 058
2 层 建筑面积:283.00 m2
湖南衡阳欧家欧式别墅 060
2 层 建筑面积:418.00 m2
河南周口朱家欧式别墅 062
3 层 建筑面积:383.00 m2
湖北黄石袁家欧式别墅 064
3 层 建筑面积:317.00 m2
河北沧州张家欧式别墅 066
2 层 建筑面积:324.00 m2
湖南衡阳周家欧式别墅 068
3 层 建筑面积:538.00 m2
江苏常州周家欧式乡墅 070
2 层 建筑面积:383.00 m2
北京顺义张家欧式别墅 071
2 层 建筑面积:286.85 m2
湖北襄阳陈家欧式别墅 072
3 层 建筑面积:356.00 m2
四川成都陶家欧式别墅 074
3 层 建筑面积:416.00 m2
内蒙古赤峰刘家欧式别墅 076
2 层 建筑面积:299.00 m2
河北邯郸李家欧式别墅 078
2 层 建筑面积:285.00 m2
广东茂名李家欧式别墅 079
3 层 建筑面积:452.00 m2
湖南娄底邓家欧式别墅 080
3 层 建筑面积:475.00 m2
湖南长沙王家简欧别墅 082
2 层 建筑面积:283.00 m2
北京通州何家欧式别墅 084
2 层 建筑面积:225.00 m2
浙江杭州胡家欧式别墅 086
3 层 建筑面积:399.00 m2
广东广州从化钟家欧式别墅 088
4 层 建筑面积:286.00 m2
湖南岳阳杨家欧式别墅 090
4 层 建筑面积:996.00 m
新中式风格
北京延庆马家新中式别墅 094
2 层 建筑面积:316.18 m2
山东菏泽刘家新中式别墅 096
3 层 建筑面积:264.71 m2
江西景德镇张家新中式别墅 098
3 层 建筑面积:279.00 m2
广东佛山苏家新中式别墅 100
2 层 建筑面积:359.00 m2
安徽黄山方家新中式别墅 102
3 层 建筑面积:392.00 m2
广东梅州吴家新中式别墅 104
3 层 建筑面积:485.38 m2
湖北咸宁徐家新中式别墅 106
3 层 建筑面积:535.00 m2
江西吉安曾家新中式别墅 108
3 层 建筑面积:368.00 m2
湖南邵阳杨家新中式别墅 110
3 层 建筑面积:264.00 m2
江西吉安徽派雅居 112
2 层 建筑面积:584.00 m2
河北承德马家新中式别墅 114
2 层 建筑面积:357.00 m2
北京房山新中式别墅 116
2 层 建筑面积:638.00 m2
河北廊坊张家新中式别墅 118
2 层 建筑面积:659.00 m2
浙江台州吴家新中式别墅 120
3 层 建筑面积:320.00 m2
湖南长沙乡宁彭家别墅 122
2 层 建筑面积:287.00 m2
湖南邵阳易家别墅 124
2 层 建筑面积:480.00 m2
北京延庆李家露台别墅 127
2 层 建筑面积:390.00 m2
海南万宁王家新中式别墅 128
3 层 建筑面积:395.00 m2
湖南常德周家新中式别墅 130
3 层 建筑面积:469.00 m2
江西九江查家别墅 132
3 层 建筑面积:228.00 m2
河北秦皇岛王家新中式合院 134
1 层 建筑面积:255.00 m2
湖南长沙新中式别墅 136
4 层 建筑面积:560.00 m2
安徽合肥沈家新中式宅院 138
2 层 建筑面积:451.00 m2
广东惠州陈家新中式宅院别墅 141
2 层 建筑面积:270.00 m2
湖南娄底李家新中式别墅 142
3 层 建筑面积:326.00 m2
北京平谷徽派别墅 144
3 层 建筑面积:365.00 m2
河南洛阳甄家新中式别墅 146
3 层 建筑面积:530.00 m2
湖北襄阳王家新中式合院 148
1 层 建筑面积:192.00 m2
安徽安庆朱家新中式别墅 150
3 层 建筑面积:438.00 m2
湖南长沙刘家新中式别墅 152
3 层 建筑面积:579.00 m2
四川绵阳陈家新中式合院 154
1 层 建筑面积:150.00 m2
安徽池州钱家新中式别墅 156
3 层 建筑面积:457.00 m2
四川巴中黄家别墅 158
3 层 建筑面积:324.00 m2
海南万宁邓家新中式别墅 160
3 层 建筑面积:395.00 m2
中式合院风格
湖南岳阳周家中式三合院别墅 162
1 层 建筑面积:181.83 m2
河北保定张家中式别墅 164
2 层 建筑面积:508.00 m2
湖北黄冈吴家中式宅院 166
2 层 建筑面积:229.00 m2
安徽阜阳吕家中式三合院 168
2 层 建筑面积:366.00 m2
安徽淮北彭家四合院 170
1 层 建筑面积:549.00 m2
江苏南通刘家苏派三合院 172
2 层 建筑面积:396.00 m2
湖南长沙浏阳李家中式合院 173
1 层 建筑面积:279.00 m2
河北涿州齐家中式三合院 174
2 层 建筑面积:264.00 m2
山东淄博李家中式宅院 176
2 层 建筑面积:291.00 m2
江西赣州大余郑家中式合院 178
2 层 建筑面积:408.00 m2
云南迪庆舒家中式合院 180
2 层 建筑面积:460.00 m2
混合中式风格
北京房山郑家别墅 184
2 层 建筑面积:351.66 m2
河北保定李家别墅 186
2 层 建筑面积:218.18 m2
湖南邵阳刘家别墅 188
2 层 建筑面积:314.50 m2
浙江杭州程家别墅 190
3 层 建筑面积:428.00 m2
广东清远谭家别墅 192
3 层 建筑面积:495.52 m2
江西抚州李家别墅 194
3 层 建筑面积:591.00 m2
河南郑州魏家别墅 196
3 层 建筑面积:631.00 m2
湖北孝感喻家别墅 198
2 层 建筑面积:301.00 m2
陕西渭南王家别墅 200
2 层 建筑面积:338.00 m2
河南南阳荣家别墅 202
2 层 建筑面积:351.00 m2
北京密云王家别墅 204
2 层 建筑面积:242.00 m2
河南洛阳杜家别墅 206
4 层 建筑面积:658.00 m2
云南曲靖代家别墅 208
2 层 建筑面积:326.00 m2
安徽芜湖朱家混合中式别墅 210
2 层 建筑面积:336.00 m2
北京房山高家混合中式别墅 212
2 层 建筑面积:379.00 m2
北京平谷张家混合中式别墅 214
2 层 建筑面积:381.00 m2
广东湛江许家度假别墅 216
2 层 建筑面积:819.00 m2
河南安阳张家别墅 217
3 层 建筑面积:628.00 m2
福建漳州黄家混合中式别墅 218
4 层 建筑面积:1100.00 m2
民宿
浙江舟山水案山居民宿 222
4 层 建筑面积:401.01 m2
北京平谷玖佑民宿 224
2 层 建筑面积:552.00 m2
安徽安庆现代民宿 226
2 层 建筑面积:558.00 m2
江苏扬州易家民宿 228
3 层 建筑面积:665.00 m2
北京房山李家现代民宿 230
2 层 建筑面积:235.00 m2
福建泉州颜家现代民宿 232
3 层 建筑面积:524.00 m2
北京延庆马家现代民宿 234
2 层 建筑面积:252.00 m2
甘肃白银张家现代民宿 236
2 层 建筑面积:421.00 m2
北京密云韦家民宿 238
2 层 建筑面积:156.00 m2
北京通州刘家民宿 240
1 层 建筑面积:326.00 m2






