编辑推荐
深化设计是室内设计行业的一个细分领域,是从设计概念至项目落地的整个过程中至关重要的一个环节,起着承上启下的作用。节点不但要表达设计师对装饰形式细节的要求,同时,它也是内部构造做法、材料、尺寸以及实施技术的直接表达和体现。本书以图解的形式汇总了墙、顶、地113个关键且常用的施工节点,用3D图的形式形象展示了场景工艺的关键点,分步骤介绍了施工图节点绘制,是建筑设计师、室内设计师、施工人员、监理人员、验收人员、房地产开发商均可参考的一本实用指导书。
图书简介
全书包含天花饰面篇、地坪饰面篇、墙身饰面篇、墙体构造篇四大类别,共计113个室内装修关键且常用的施工节点。为方便读者阅读,全书采用一个节点一个左右页对应编排的形式展现,左手页以直观的3D图展示各节点工艺标准、施工顺序、材料、规格及规范,身临其境,通俗易懂;右手页对该节点的施工图绘制过程和标准进行展示,入门新手也能一看即懂。有效解决了从业人员缺乏工地现场经验、高品质标准项目经验、深化设计经验以及节点图纸绘制规范等难题。
本书旨在为设计师提供一本涵盖面广的通用节点工具书,方便大家在设计过程中快速地参考相关的节点工艺,也是入门新手可以跨行业自学的辅导书。
本书旨在为设计师提供一本涵盖面广的通用节点工具书,方便大家在设计过程中快速地参考相关的节点工艺,也是入门新手可以跨行业自学的辅导书。
图书目录
1 天花饰面篇
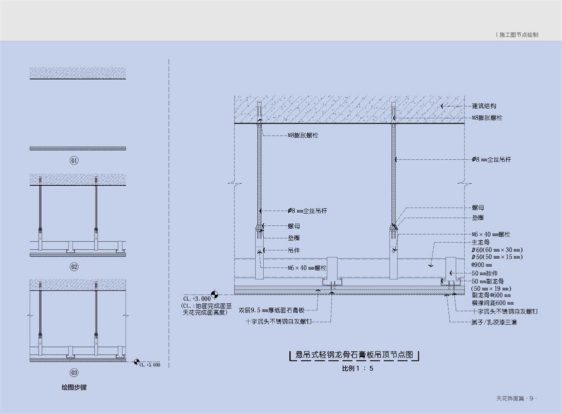
01 悬吊式轻钢龙骨石膏板吊顶 8
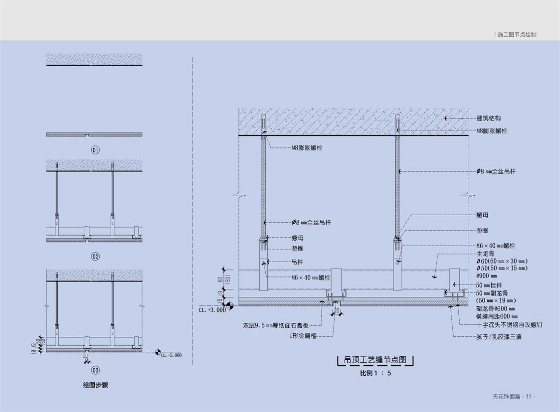
02 轻钢龙骨石膏板吊顶——工艺缝 10
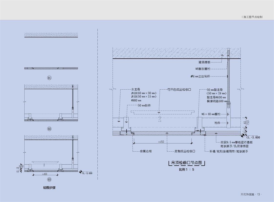
03 轻钢龙骨石膏板吊顶——检修口 12
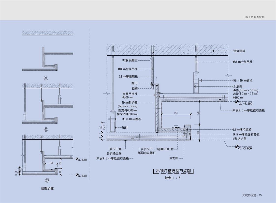
04 轻钢龙骨石膏板吊顶——灯槽造型 14
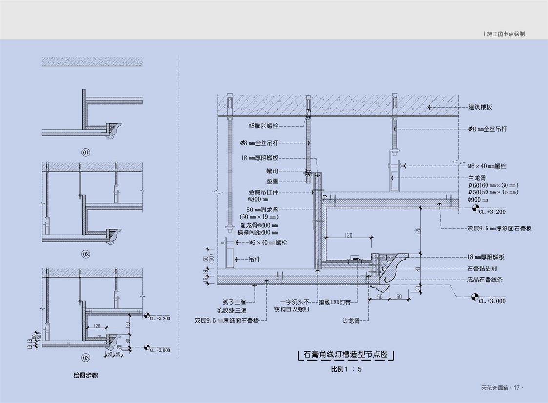
05 轻钢龙骨石膏板吊顶——石膏角线灯槽造型 16
06 轻钢龙骨石膏板吊顶——灯槽加空调风口 18
07 轻钢龙骨石膏板吊顶——灯槽加弧形角线 20
08 轻钢龙骨石膏板吊顶——暗藏式窗帘盒 22
09 轻钢龙骨石膏板吊顶——暗藏式窗帘盒低于窗 24
10 轻钢龙骨石膏板吊顶——明装式窗帘盒 26
11 轻钢龙骨石膏板吊顶——明装式窗帘盒低于窗 28
12 轻钢龙骨石膏板吊顶——沉降缝做法 30
13 轻钢龙骨石膏板吊顶——暗藏式投影幕 32
14 轻钢龙骨石膏板吊顶——靠墙暗藏式投影幕 34
15 轻钢龙骨石膏板吊顶——斜面造型 36
16 轻钢龙骨石膏板吊顶——暗藏升降式投影仪 38
17 轻钢龙骨石膏板吊顶——升降式挡烟垂壁 40
18 轻钢龙骨石膏板吊顶——钢制防火卷帘 42
19 轻钢龙骨石膏板吊顶——固定式挡烟垂壁 44
20 轻钢龙骨石膏板吊顶——斜拉式反支撑 46
21 轻钢龙骨石膏板吊顶——反支撑常规做法 48
22 轻钢龙骨石膏板吊顶——内嵌式花洒 50
23 轻钢龙骨石膏板吊顶——无纺布防火卷帘 52
24 轻钢龙骨石膏板吊顶——软膜天花灯箱 54
25 轻钢龙骨石膏板吊顶——亚克力灯箱 56
26 轻钢龙骨石膏板吊顶——木饰面天花 58
27 金属格栅吊顶——金属圆管 60
28 金属格栅吊顶——矩形金属管 62
29 轻钢龙骨墙、顶连接处做法——阴角工艺缝 64
30 轻钢龙骨墙、顶连接处做法——石膏角线 66
31 墙、顶连接处做法——灯槽加空调风口 68
32 卡式承载龙骨石膏板吊顶 70
33 贴顶式轻钢龙骨石膏板吊顶 72
2 地坪饰面篇
01 地面沉降缝收口 76
02 混凝土基层——木地板 78
03 混凝土楼梯——木地板踏步暗藏灯带 80
04 木龙骨基层——木地板 82
05 钢结构楼梯——木地板踏步 84
06 混凝土楼梯——木地板踏步 86
07 块毯地面铺装及金属踢脚线 88
08 满铺卷材地毯及金属踢脚线 90
09 钢结构楼梯——地毯踏步 92
10 混凝土楼梯——地毯踏步 94
11 混凝土楼梯——石材踏步暗藏灯带 96
12 钢结构楼梯——石材踏步 98
13 石材地面铺装——干铺法 100
14 石材地面明装地漏 102
15 石材地面隐形地漏 104
16 石材地面定制型隐形地漏 106
17 泳池排水槽与明装排水格栅 108
18 泳池隐形式排水槽 110
19 卫生间门槛石地坪 112
20 淋浴区挡水槛地坪 114
21 地暖及石材地坪 116
22 水磨石地坪 118
23 塑胶地板地坪及金属踢脚线 120
24 环氧地坪 122
25 钢架地台石材地面 124
26 防腐木地坪 126
27 地面架空地板 128
28 玻璃地台地坪 130
29 石材地面与除尘地毯 132
30 木地板与卷材地毯交接收口 134
31 石材地坪与卷材地毯交接收口 136
32 石材地坪与木地板交接收口 138
3 墙身饰面篇
01 轻钢龙骨石膏板墙体——乳胶漆饰面 142
02 混凝土及砌块墙体——乳胶漆饰面 144
03 轻钢龙骨墙体——硬包饰面干挂 146
04 蒸压加气混凝土砌块墙体——硬包饰面干挂 148
05 轻钢龙骨墙体——木饰面干挂 150
06 蒸压加气混凝土砌块墙体——木饰面干挂 152
07 轻钢龙骨墙体——木饰面粘贴 154
08 蒸压加气混凝土砌块墙体——木饰面粘贴 156
09 轻钢龙骨石膏板墙体——壁纸饰面 158
10 轻钢龙骨墙体——木质吸声板饰面 160
11 蒸压加气混凝土砌块墙体——木质吸声板饰面 162
12 轻钢龙骨墙体——金属板饰面 164
13 蒸压加气混凝土砌块墙体——金属板饰面 166
14 轻钢龙骨墙体——金属板饰面干挂 168
15 蒸压加气混凝土砌块墙体——金属板饰面干挂 170
16 钢结构墙体——石材饰面湿贴 172
17 砌块墙体——石材饰面湿贴 174
18 混凝土结构墙体——石材饰面干挂 176
19 蒸压加气混凝土砌块墙体——石材饰面干挂 178
20 轻钢龙骨墙体——软包饰面干挂 180
21 蒸压加气混凝土砌块墙体——软包饰面干挂 182
22 轻钢龙骨墙体——玻璃饰面 184
23 蒸压加气混凝土砌块墙体——玻璃饰面 186
24 混凝土结构墙体——GRG 饰面干挂 188
25 蒸压加气混凝土砌块墙体——GRG 饰面干挂 190
26 电梯金属门套与墙面石材饰面 192
27 电梯石材门套与墙面石材饰面 194
28 建筑幕墙窗——石材窗台板湿贴 196
29 建筑幕墙窗——石材窗台板粘贴 198
30 石材墙面与淋浴玻璃隔断固定收口 200
31 玻璃幕墙 / 窗与轻钢龙骨墙体交接收口(方式一) 202
32 玻璃幕墙 / 窗与轻钢龙骨墙体交接收口(方式二) 204
33 暗藏蹲便器水箱——干挂石材 206
34 挂墙小便器——干挂石材 208
35 暗藏式坐便器水箱——干挂石材 210
36 墙面干挂石材——沉降缝收口 212
37 石材墙面与石材踢脚线平收口 214
38 石材墙面与石材踢脚线凸收口 216
39 石材墙面与内凹金属踢脚线收口 218
40 石材墙面与凸出金属踢脚线收口 220
41 墙地面湿贴石材及防水 222
42 干挂石材消火栓暗门 224
4 墙体构造篇
01 蒸压加气混凝土砌块隔墙墙体构造 228
02 双排轻钢石膏板隔墙墙体构造 230
03 混凝土导墙轻钢石膏板隔墙墙体构造 232
04 钢架隔墙墙体构造 234
05 超薄钢架石材墙墙体构造 236
06 玻璃隔墙墙体构造 238
01 悬吊式轻钢龙骨石膏板吊顶 8
02 轻钢龙骨石膏板吊顶——工艺缝 10
03 轻钢龙骨石膏板吊顶——检修口 12
04 轻钢龙骨石膏板吊顶——灯槽造型 14
05 轻钢龙骨石膏板吊顶——石膏角线灯槽造型 16
06 轻钢龙骨石膏板吊顶——灯槽加空调风口 18
07 轻钢龙骨石膏板吊顶——灯槽加弧形角线 20
08 轻钢龙骨石膏板吊顶——暗藏式窗帘盒 22
09 轻钢龙骨石膏板吊顶——暗藏式窗帘盒低于窗 24
10 轻钢龙骨石膏板吊顶——明装式窗帘盒 26
11 轻钢龙骨石膏板吊顶——明装式窗帘盒低于窗 28
12 轻钢龙骨石膏板吊顶——沉降缝做法 30
13 轻钢龙骨石膏板吊顶——暗藏式投影幕 32
14 轻钢龙骨石膏板吊顶——靠墙暗藏式投影幕 34
15 轻钢龙骨石膏板吊顶——斜面造型 36
16 轻钢龙骨石膏板吊顶——暗藏升降式投影仪 38
17 轻钢龙骨石膏板吊顶——升降式挡烟垂壁 40
18 轻钢龙骨石膏板吊顶——钢制防火卷帘 42
19 轻钢龙骨石膏板吊顶——固定式挡烟垂壁 44
20 轻钢龙骨石膏板吊顶——斜拉式反支撑 46
21 轻钢龙骨石膏板吊顶——反支撑常规做法 48
22 轻钢龙骨石膏板吊顶——内嵌式花洒 50
23 轻钢龙骨石膏板吊顶——无纺布防火卷帘 52
24 轻钢龙骨石膏板吊顶——软膜天花灯箱 54
25 轻钢龙骨石膏板吊顶——亚克力灯箱 56
26 轻钢龙骨石膏板吊顶——木饰面天花 58
27 金属格栅吊顶——金属圆管 60
28 金属格栅吊顶——矩形金属管 62
29 轻钢龙骨墙、顶连接处做法——阴角工艺缝 64
30 轻钢龙骨墙、顶连接处做法——石膏角线 66
31 墙、顶连接处做法——灯槽加空调风口 68
32 卡式承载龙骨石膏板吊顶 70
33 贴顶式轻钢龙骨石膏板吊顶 72
2 地坪饰面篇
01 地面沉降缝收口 76
02 混凝土基层——木地板 78
03 混凝土楼梯——木地板踏步暗藏灯带 80
04 木龙骨基层——木地板 82
05 钢结构楼梯——木地板踏步 84
06 混凝土楼梯——木地板踏步 86
07 块毯地面铺装及金属踢脚线 88
08 满铺卷材地毯及金属踢脚线 90
09 钢结构楼梯——地毯踏步 92
10 混凝土楼梯——地毯踏步 94
11 混凝土楼梯——石材踏步暗藏灯带 96
12 钢结构楼梯——石材踏步 98
13 石材地面铺装——干铺法 100
14 石材地面明装地漏 102
15 石材地面隐形地漏 104
16 石材地面定制型隐形地漏 106
17 泳池排水槽与明装排水格栅 108
18 泳池隐形式排水槽 110
19 卫生间门槛石地坪 112
20 淋浴区挡水槛地坪 114
21 地暖及石材地坪 116
22 水磨石地坪 118
23 塑胶地板地坪及金属踢脚线 120
24 环氧地坪 122
25 钢架地台石材地面 124
26 防腐木地坪 126
27 地面架空地板 128
28 玻璃地台地坪 130
29 石材地面与除尘地毯 132
30 木地板与卷材地毯交接收口 134
31 石材地坪与卷材地毯交接收口 136
32 石材地坪与木地板交接收口 138
3 墙身饰面篇
01 轻钢龙骨石膏板墙体——乳胶漆饰面 142
02 混凝土及砌块墙体——乳胶漆饰面 144
03 轻钢龙骨墙体——硬包饰面干挂 146
04 蒸压加气混凝土砌块墙体——硬包饰面干挂 148
05 轻钢龙骨墙体——木饰面干挂 150
06 蒸压加气混凝土砌块墙体——木饰面干挂 152
07 轻钢龙骨墙体——木饰面粘贴 154
08 蒸压加气混凝土砌块墙体——木饰面粘贴 156
09 轻钢龙骨石膏板墙体——壁纸饰面 158
10 轻钢龙骨墙体——木质吸声板饰面 160
11 蒸压加气混凝土砌块墙体——木质吸声板饰面 162
12 轻钢龙骨墙体——金属板饰面 164
13 蒸压加气混凝土砌块墙体——金属板饰面 166
14 轻钢龙骨墙体——金属板饰面干挂 168
15 蒸压加气混凝土砌块墙体——金属板饰面干挂 170
16 钢结构墙体——石材饰面湿贴 172
17 砌块墙体——石材饰面湿贴 174
18 混凝土结构墙体——石材饰面干挂 176
19 蒸压加气混凝土砌块墙体——石材饰面干挂 178
20 轻钢龙骨墙体——软包饰面干挂 180
21 蒸压加气混凝土砌块墙体——软包饰面干挂 182
22 轻钢龙骨墙体——玻璃饰面 184
23 蒸压加气混凝土砌块墙体——玻璃饰面 186
24 混凝土结构墙体——GRG 饰面干挂 188
25 蒸压加气混凝土砌块墙体——GRG 饰面干挂 190
26 电梯金属门套与墙面石材饰面 192
27 电梯石材门套与墙面石材饰面 194
28 建筑幕墙窗——石材窗台板湿贴 196
29 建筑幕墙窗——石材窗台板粘贴 198
30 石材墙面与淋浴玻璃隔断固定收口 200
31 玻璃幕墙 / 窗与轻钢龙骨墙体交接收口(方式一) 202
32 玻璃幕墙 / 窗与轻钢龙骨墙体交接收口(方式二) 204
33 暗藏蹲便器水箱——干挂石材 206
34 挂墙小便器——干挂石材 208
35 暗藏式坐便器水箱——干挂石材 210
36 墙面干挂石材——沉降缝收口 212
37 石材墙面与石材踢脚线平收口 214
38 石材墙面与石材踢脚线凸收口 216
39 石材墙面与内凹金属踢脚线收口 218
40 石材墙面与凸出金属踢脚线收口 220
41 墙地面湿贴石材及防水 222
42 干挂石材消火栓暗门 224
4 墙体构造篇
01 蒸压加气混凝土砌块隔墙墙体构造 228
02 双排轻钢石膏板隔墙墙体构造 230
03 混凝土导墙轻钢石膏板隔墙墙体构造 232
04 钢架隔墙墙体构造 234
05 超薄钢架石材墙墙体构造 236
06 玻璃隔墙墙体构造 238












