编辑推荐
本书是一本目前装饰业内比较实用的专业指导用书,该书有别于以往传统教材“白纸黑字”的编辑方式,将原先只能通过二维图纸进行表达的施工工艺节点通过三维立体模型进行展示,大大方便了读者的学习,也提升了读者的阅读体验,是一本相对务实落地的好书。
图书简介
本书是装饰项目墙面收口工艺指导工具书,系统介绍了室内装饰工程施工过程中墙面各类收口工艺的具体施工办法。全书主要通过对例如墙面石材干挂、木饰面干挂、不锈钢收口安装等不同材质的安装工艺以及通过对比如混凝土墙面、加砌块墙面施工等不同类型墙面施工的工艺做法进行剖析及系统讲解,涵盖了空间内大部分常用墙面施工工艺以及不同墙面材料施工的工艺节点,利用专业软件建模结合CAD深化节点图纸,进行系统剖析,方便查阅。
图书目录
01 加气砌块墙体乳胶漆类做法
02 混凝土隔墙乳胶漆类做法(1)
03 混凝土隔墙乳胶漆类做法(2)
04 混凝土隔墙乳胶漆类做法(3)
05 轻钢龙骨隔墙乳胶漆类做法(1)
06 轻钢龙骨隔墙乳胶漆类做法(2)
07 混凝土墙体石材干挂
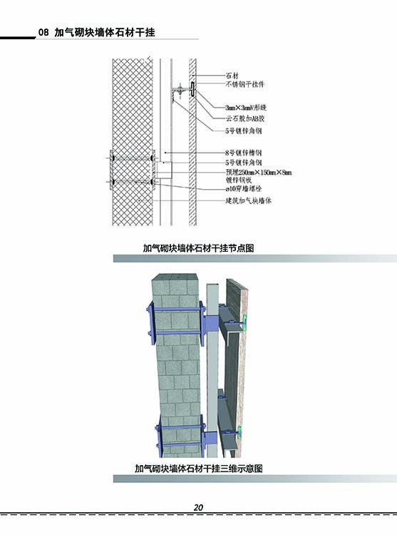
08 加气砌块墙体石材干挂
09 石材隔墙工艺做法(1)
10 石材隔墙工艺做法(2)
11 窗台板工艺
12 石材与墙砖相接
13 石材与木饰面相接(1)
14 石材与木饰面相接(2)
15 石材与木饰面相接(3)
16 石材与木饰面相接(4)
17 石材与木饰面相接(5)
18 石材与木饰面相接(6)
19 石材踢脚线与软包相接
20 石材与软包相接
21 石材与硬包相接
22 石材与石材相接(1)
23 石材与石材相接(2)
24 石材与石材相接(3)
25 石材与不锈钢相接(1)
26 石材与不锈钢相接(2)
27 石材与玻璃相接(1)
28 石材与玻璃相接(2)
29 石材与玻璃相接(3)
30 石材与墙纸相接
31 石材暗门工艺做法
32 混凝土柱石材干挂
33 建筑钢柱石材干挂
34 木龙骨干挂木饰面做法
35 卡式龙骨干挂木饰面做法
36 混凝土基层木饰面干挂做法
37 轻钢龙骨基层木饰面干挂做法
38 木饰面与玻璃相接(1)
39 木饰面与玻璃相接(2)
40 木饰面与玻璃相接(3)
41 木饰面与不锈钢相接(1)
42 木饰面与不锈钢相接(2)
43 木饰面与不锈钢相接(3)
44 木饰面与墙纸相接(1)
45 木饰面与墙纸相接(2)
46 木饰面与墙纸相接(3)
47 木饰面与墙纸相接(4)
48 木饰面与软硬包相接(1)
49 木饰面与软硬包相接(2)
50 木饰面与软硬包相接(3)
51 木饰面与软硬包相接(4)
52 木饰面与软硬包相接(5)
53 墙砖与木饰面相接
54 墙砖与墙纸相接
55 墙砖与不锈钢相接
56 软硬包与不锈钢踢脚线相接
57 木饰面与不锈钢踢脚线相接
58 玻璃与不锈钢相接
59 乳胶漆与不锈钢相接
60 轻钢龙骨基层不锈钢做法
61 混凝土隔墙木基层不锈钢做法
62 轻钢龙骨基层软包做法
63 混凝土基层硬包做法
64 乳胶漆与软硬包相接(1)
65 乳胶漆与软硬包相接(2)
66 乳胶漆与软硬包相接(3)
67 软硬包与墙纸相接
68 玻璃窗与墙面相接
69 墙面艺术玻璃做法
70 玻璃栏杆扶手工艺做法(1)
71 玻璃栏杆扶手工艺做法(2)
72 陶瓷马赛克隔墙工艺做法(1)
73 陶瓷马赛克隔墙工艺做法(2)
74 混凝土基层门套做法
75 轻钢龙骨基层门套做法
02 混凝土隔墙乳胶漆类做法(1)
03 混凝土隔墙乳胶漆类做法(2)
04 混凝土隔墙乳胶漆类做法(3)
05 轻钢龙骨隔墙乳胶漆类做法(1)
06 轻钢龙骨隔墙乳胶漆类做法(2)
07 混凝土墙体石材干挂
08 加气砌块墙体石材干挂
09 石材隔墙工艺做法(1)
10 石材隔墙工艺做法(2)
11 窗台板工艺
12 石材与墙砖相接
13 石材与木饰面相接(1)
14 石材与木饰面相接(2)
15 石材与木饰面相接(3)
16 石材与木饰面相接(4)
17 石材与木饰面相接(5)
18 石材与木饰面相接(6)
19 石材踢脚线与软包相接
20 石材与软包相接
21 石材与硬包相接
22 石材与石材相接(1)
23 石材与石材相接(2)
24 石材与石材相接(3)
25 石材与不锈钢相接(1)
26 石材与不锈钢相接(2)
27 石材与玻璃相接(1)
28 石材与玻璃相接(2)
29 石材与玻璃相接(3)
30 石材与墙纸相接
31 石材暗门工艺做法
32 混凝土柱石材干挂
33 建筑钢柱石材干挂
34 木龙骨干挂木饰面做法
35 卡式龙骨干挂木饰面做法
36 混凝土基层木饰面干挂做法
37 轻钢龙骨基层木饰面干挂做法
38 木饰面与玻璃相接(1)
39 木饰面与玻璃相接(2)
40 木饰面与玻璃相接(3)
41 木饰面与不锈钢相接(1)
42 木饰面与不锈钢相接(2)
43 木饰面与不锈钢相接(3)
44 木饰面与墙纸相接(1)
45 木饰面与墙纸相接(2)
46 木饰面与墙纸相接(3)
47 木饰面与墙纸相接(4)
48 木饰面与软硬包相接(1)
49 木饰面与软硬包相接(2)
50 木饰面与软硬包相接(3)
51 木饰面与软硬包相接(4)
52 木饰面与软硬包相接(5)
53 墙砖与木饰面相接
54 墙砖与墙纸相接
55 墙砖与不锈钢相接
56 软硬包与不锈钢踢脚线相接
57 木饰面与不锈钢踢脚线相接
58 玻璃与不锈钢相接
59 乳胶漆与不锈钢相接
60 轻钢龙骨基层不锈钢做法
61 混凝土隔墙木基层不锈钢做法
62 轻钢龙骨基层软包做法
63 混凝土基层硬包做法
64 乳胶漆与软硬包相接(1)
65 乳胶漆与软硬包相接(2)
66 乳胶漆与软硬包相接(3)
67 软硬包与墙纸相接
68 玻璃窗与墙面相接
69 墙面艺术玻璃做法
70 玻璃栏杆扶手工艺做法(1)
71 玻璃栏杆扶手工艺做法(2)
72 陶瓷马赛克隔墙工艺做法(1)
73 陶瓷马赛克隔墙工艺做法(2)
74 混凝土基层门套做法
75 轻钢龙骨基层门套做法










