《室内细部图集》全套共6本,书中介绍的百余个室内设计实例,共分为10大类,每类含有几个到十几个真实案例,每个案例都配有若干实景图和详细的施工图。
书中施工图可凭书内所附的密码在凤凰空间官网免费下载,并可经过简单转换,便可在CAD中打开并编辑。为读者们仔细探究细节和借鉴案例内容提供了便利。
书中的每一个案例都配有一小段简明扼要的设计风格解析,帮助读者轻松抓住每一个设计要点和细节的把控,对空间的设计特点阐述得清晰明了。
编辑推荐
图书简介
本套丛书共6册,以图集的形式介绍了21世纪的餐厅、商店与住宅、办公场所与教育机构、咖啡馆、医疗中心与文化中心、酒店与休闲场所的室内细部设计,精美的场地实拍照片和丰富翔实的细部设计图纸可以帮助设计师加深他们对空间的理解,并帮助进而形成新的富于创造性的思想。
每本书的细节施工图和全文电子书都可凭书中密码通过凤凰空间官网下载,通过简单的转换,就可以在CAD软件中进行编辑。
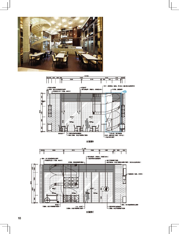
本册是其中咖啡馆的室内设计,介绍了22家国外特色咖啡馆的室内设计规划实例。
每本书的细节施工图和全文电子书都可凭书中密码通过凤凰空间官网下载,通过简单的转换,就可以在CAD软件中进行编辑。
本册是其中咖啡馆的室内设计,介绍了22家国外特色咖啡馆的室内设计规划实例。
图书目录
吉利莲比利时巧克力咖啡馆 6
强强咖啡馆 16
IT’S DELI 咖啡馆 22
苹果街咖啡馆 28
MATTO咖啡馆 38
邪恶的白雪公主咖啡馆(一店) 44
邪恶的白雪公主咖啡馆(二店) 56
维泽里咖啡馆 66
947咖啡馆 76
LAB O咖啡馆 84
SEIZERODUE咖啡馆 100
Leez咖啡馆 106
The Azit咖啡馆 114
丰收季咖啡馆 122
甜品树咖啡馆 128
THE LOUNGE咖啡馆 134
FABIOLAS咖啡馆 142
苹果花咖啡馆 150
昭福咖啡馆 158
浪漫咖啡馆 166
七泉咖啡馆 174
221B咖啡馆 182
强强咖啡馆 16
IT’S DELI 咖啡馆 22
苹果街咖啡馆 28
MATTO咖啡馆 38
邪恶的白雪公主咖啡馆(一店) 44
邪恶的白雪公主咖啡馆(二店) 56
维泽里咖啡馆 66
947咖啡馆 76
LAB O咖啡馆 84
SEIZERODUE咖啡馆 100
Leez咖啡馆 106
The Azit咖啡馆 114
丰收季咖啡馆 122
甜品树咖啡馆 128
THE LOUNGE咖啡馆 134
FABIOLAS咖啡馆 142
苹果花咖啡馆 150
昭福咖啡馆 158
浪漫咖啡馆 166
七泉咖啡馆 174
221B咖啡馆 182










