《景观设计思源——大师手绘草图构思与表达》通过38位顶尖景观设计师的手绘和草图速写作品,从简单的线图构思到细部的精致描绘,向设计从业者以及学生展示了他们设计灵感的来源以及如何将这些灵感付诸实践到每一个具体的项目中。这些经典案例的艺术美感以及快速手绘表达为读者提供了学习和临摹的完美资料。《景观设计思源——大师手绘草图构思与表达》试读于景观园林设计师,景观设计专业的师生。
最难能可贵并区别于其他手绘作品的是,《景观设计思源》通过对大师的采访和对方,剖析了在当今高科技发达的设计世界中,如何真正地把电脑制作与手绘结合起来,最终达到设计的最高水平。
编辑推荐
图书简介
本书收录了包括德国戴水道、美国巴尔莫里、BCA、哈塞尔设计公司等38个世界顶尖水平的景观园林设计师和其工作室的原始手绘草图。近800张珍贵的手绘图片资料以案例的形式分类首次呈现在读者面前,展示了这些大师级作品从设计之初就深含的精巧构思与思想,激发职业设计师、爱好者以及学生们的灵感与创意。
图书目录
简介
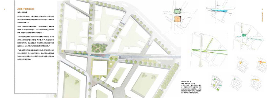
Alelier Dreiseitl 德国,乌伯林根
Balmori 美国,纽约
I & J Bannerman 英国,康沃尔
BCA Landscape 英国,利物浦
Prabhakar B. Bhagwat 印度,孟买
Cao / Perrot 美国,洛杉矶 / 法国,巴黎
Fernando Caruncho 西班牙,马德里
Claude Cormier 加拿大,蒙特利尔
Paul de Kort 荷兰,De Meem
Doxiadis+ 希腊,雅典
Estudio OCA 西班牙,巴塞罗那
Monika Gora 瑞典,马尔默
GreenInc 南非,兰德堡
Gross Max 英国,爱丁堡
Gustafson Porter 英国,伦敦
Hassell 澳大利亚,墨尔本
Hocker Design 美国,达拉斯
Edward Hutchison 英国,伦敦
Raymond Jungles 美国,迈阿密
Mikyoung Kim 美国,波士顿
Cristina Le Mehaute 阿根廷,布宜诺斯艾利斯
Ken Nebelong 丹麦,哥本哈根
Piet Oudolf 荷兰,胡梅罗
Pena & Pena 法国,巴黎
Pola 意大利,米兰
Patrizia Pozzi 意大利,米兰
Sarah Price 英国,蒙茅斯郡
Proap 葡萄牙,里斯本
Daniel Roehr 加拿大,温哥华
SLA 丹麦,哥本哈根
Ken Smith 美国,纽约
Tom Stuart-Smith 英国,伦敦
Taylor Cullity Lethlean 澳大利亚,维多利亚
Mario Terzic 奥地利,维也纳
Cleve West 英国,萨里
ZUS 荷兰,鹿特丹
索引
图片来源/致谢
Alelier Dreiseitl 德国,乌伯林根
Balmori 美国,纽约
I & J Bannerman 英国,康沃尔
BCA Landscape 英国,利物浦
Prabhakar B. Bhagwat 印度,孟买
Cao / Perrot 美国,洛杉矶 / 法国,巴黎
Fernando Caruncho 西班牙,马德里
Claude Cormier 加拿大,蒙特利尔
Paul de Kort 荷兰,De Meem
Doxiadis+ 希腊,雅典
Estudio OCA 西班牙,巴塞罗那
Monika Gora 瑞典,马尔默
GreenInc 南非,兰德堡
Gross Max 英国,爱丁堡
Gustafson Porter 英国,伦敦
Hassell 澳大利亚,墨尔本
Hocker Design 美国,达拉斯
Edward Hutchison 英国,伦敦
Raymond Jungles 美国,迈阿密
Mikyoung Kim 美国,波士顿
Cristina Le Mehaute 阿根廷,布宜诺斯艾利斯
Ken Nebelong 丹麦,哥本哈根
Piet Oudolf 荷兰,胡梅罗
Pena & Pena 法国,巴黎
Pola 意大利,米兰
Patrizia Pozzi 意大利,米兰
Sarah Price 英国,蒙茅斯郡
Proap 葡萄牙,里斯本
Daniel Roehr 加拿大,温哥华
SLA 丹麦,哥本哈根
Ken Smith 美国,纽约
Tom Stuart-Smith 英国,伦敦
Taylor Cullity Lethlean 澳大利亚,维多利亚
Mario Terzic 奥地利,维也纳
Cleve West 英国,萨里
ZUS 荷兰,鹿特丹
索引
图片来源/致谢












