那些年,我们一起追过的迈耶
从初入建筑系的大学生,到在建筑行业闯荡多年的建筑师,每个拥有建筑梦的人,都应该会有几个心仪的建筑偶像用来膜拜并激励自己吧。时光荏苒,无论是经历五年千锤百炼的建筑设计的基础夯实,还是投身建筑行业后的摸爬滚打,相信大家对建筑,对建筑大师都有全新的理解和感悟。 作为曾经最年轻的普利策获奖大师,理查德·迈耶以其对光影的表现闻名于世! 很多中国建筑师的学习生涯,是从模仿理查德·迈耶的建筑设计手法开始的。
从“史密斯住宅”这一成名代表作开始,理查德·迈耶在49岁时便获得了建筑界的至高荣誉普利策奖,曾是该奖最年轻的得主。如今已然80岁高龄的他依然痴迷于光线、环境与建筑的关系,并且不断以“白色”作为标志性符号进行着设计。迈耶曾经表达过“建筑是一个糟糕的生意”的观点,他认为如果想做生意,建筑可不应该是你的第一选择,“你必须发自内心的想去从事这一行”。
理查德·迈耶建筑师事务所已经成立50余年。他坚持了 50年的设计事业和不变的设计方向,标示着一种持续积累、完善逻辑、非碎片化、非暂时消费的建筑师发展之路; 50年的岁月刻度,提示着我们中国建筑师,那还未曾被深刻浸润就已随时代匆匆流逝的现代主义设计传统。“伴随着当今世界上发生的一切变化,建筑持续以恒地以其美学特质感动着我们,就如同过去那些伟大的建筑一样,这一点从未改变”。“ 我们对现状很满意。”80岁高龄的理查德·迈耶仍然充满希望,“现在虽然不是好时候,但也没那么糟。”
编辑推荐
图书简介
理查德·迈耶丛书共计六卷,收录了理查德·迈耶以及迈耶工作室近50年来的全部设计作品。迈耶设计的产品都颇为简练,既包括居家设计也包括商用设计。他设计的作品最大的特点是永远有自己的特性而不是在风格上受别人的影响而迷惑。由于其大胆的风格和值得称颂的忠诚,迈耶创造出颇为独特的粗壮风格。为了在展示方面做得更好,他将斜格、正面以及明暗差别强烈的外形等方面和谐地融合在一起。迈耶的作品以“顺应自然”的理论为基础,表面材料常用白色,以绿色的自然景物衬托,使人觉得清新脱俗,他还善于利用白色表达建筑本身与周围环境的和谐关系。在建筑内部,他运用垂直空间和天然光线在建筑上的反射达到富于光影的效果,他以新的观点解释旧的建筑,并重新组合几何空间。
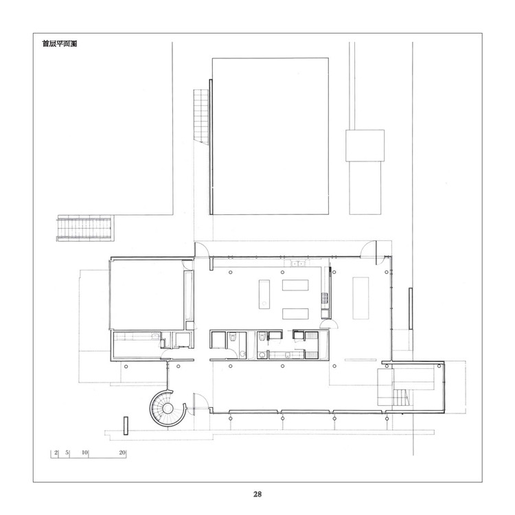
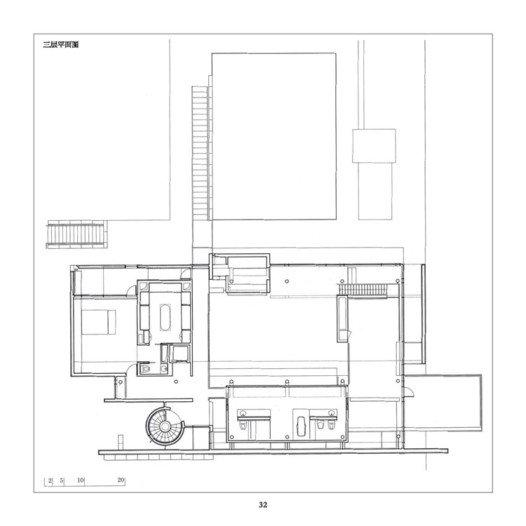
本卷为第三卷,收录了理查德迈耶转折时期的作品,本书收录的项目以私人建筑公共建筑项目为主,包括迈耶付出14年心血设计和建造的盖蒂中心。收录的30余个项目,平面图、剖面图、立面图齐全,文字详实,对建筑专业学生和建筑师有极大的参考和借鉴意义。
本卷为第三卷,收录了理查德迈耶转折时期的作品,本书收录的项目以私人建筑公共建筑项目为主,包括迈耶付出14年心血设计和建造的盖蒂中心。收录的30余个项目,平面图、剖面图、立面图齐全,文字详实,对建筑专业学生和建筑师有极大的参考和借鉴意义。
图书目录
序
Preface 6
理查德·迈耶后期作品中的三个隐喻
Three Tropes in the Later Work of
Richard Meier 8
第三阶段
The Third Installment 16
私人建筑项目
Private Buildings and Projects 21
Rachofsky住宅
Rachofsky House 23
Neugebauer 住宅
Neugebauer House 45
公共建筑项目
Public Buildings and Projects 51
乌尔姆展览与集会大楼
Exhibition and Assembly Building 53
海牙市政厅和中央图书馆
City Hague and Central Library 73
魏斯豪普特集会厅
Weishaupt Forum 93
荷兰皇家造纸厂总部
Royal Dutch Paper Mills
Headquarters 113
巴塞罗那当代艺术博物馆
Museum of Contemporary Art 131
Canal +总部
Canal +Headquarters 155
Espace Pitôt 173
Hypolux银行大楼
Hypolux Bank Building 179
戴姆勒-奔驰研究中心
Daimler-Benz Research Center 193
卡姆登医疗中心
Camden Medical Center 205
Euregio办公楼
Euregio Office Building 213
汉斯·阿尔普博物馆
Hans Arp Museum 225
瑞士航空公司北美总部大楼
Swissair North American Headquarters 235
波茨坦广场总体规划
Potsdamer Platz Master Plan 257
联邦大楼和国家法院
Federal Building and
United States Courthouse 261
电视和广播博物馆
Museum of Television & Radio 273
联邦大楼和国家法院
Federal Building and
United States Courthouse 287
加戈塞画廊
Gagosian Gallery 299
Ara Pacis博物馆
Ara Pacis Museum 305
盖蒂中心
The Getty Center 311
2000年教堂
Church of the Year 2000 403
后记
黑与白:关于理查德·迈耶
Postscript
Black on White: On Richard Meier 420
人物传略年表
Biographical Chronology 422
参考文献
Selected Bibliography 434
摄影
Photographers 439
合作者 Collaborators 440
Preface 6
理查德·迈耶后期作品中的三个隐喻
Three Tropes in the Later Work of
Richard Meier 8
第三阶段
The Third Installment 16
私人建筑项目
Private Buildings and Projects 21
Rachofsky住宅
Rachofsky House 23
Neugebauer 住宅
Neugebauer House 45
公共建筑项目
Public Buildings and Projects 51
乌尔姆展览与集会大楼
Exhibition and Assembly Building 53
海牙市政厅和中央图书馆
City Hague and Central Library 73
魏斯豪普特集会厅
Weishaupt Forum 93
荷兰皇家造纸厂总部
Royal Dutch Paper Mills
Headquarters 113
巴塞罗那当代艺术博物馆
Museum of Contemporary Art 131
Canal +总部
Canal +Headquarters 155
Espace Pitôt 173
Hypolux银行大楼
Hypolux Bank Building 179
戴姆勒-奔驰研究中心
Daimler-Benz Research Center 193
卡姆登医疗中心
Camden Medical Center 205
Euregio办公楼
Euregio Office Building 213
汉斯·阿尔普博物馆
Hans Arp Museum 225
瑞士航空公司北美总部大楼
Swissair North American Headquarters 235
波茨坦广场总体规划
Potsdamer Platz Master Plan 257
联邦大楼和国家法院
Federal Building and
United States Courthouse 261
电视和广播博物馆
Museum of Television & Radio 273
联邦大楼和国家法院
Federal Building and
United States Courthouse 287
加戈塞画廊
Gagosian Gallery 299
Ara Pacis博物馆
Ara Pacis Museum 305
盖蒂中心
The Getty Center 311
2000年教堂
Church of the Year 2000 403
后记
黑与白:关于理查德·迈耶
Postscript
Black on White: On Richard Meier 420
人物传略年表
Biographical Chronology 422
参考文献
Selected Bibliography 434
摄影
Photographers 439
合作者 Collaborators 440















